Chủ nhà ở quận Đống Đa (Hà Nội) mong muốn ngôi nhà đã tồn tại 30 năm của mình tiện nghi và có thêm chức năng.

Chủ nhà là bác sĩ nên có nhu cầu sử dụng một phần ngôi nhà làm phòng khám tư. KTS Nguyễn Thành Nhân đề xuất giải pháp phân bố các không gian phù hợp chức năng theo từng tầng riêng biệt.
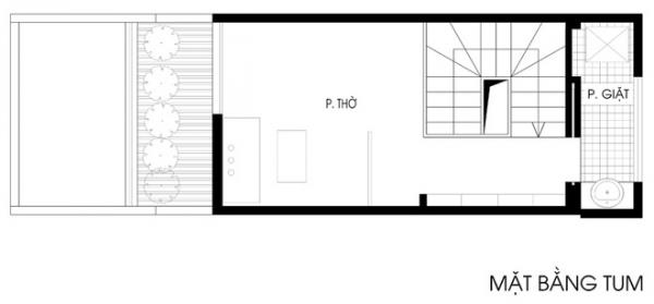
Theo đó, tầng một để đón tiếp khách và tư vấn, tầng 2 là nơi khám chữa bệnh, tầng 3 là bếp nấu và phòng ăn, tầng 4 là phòng ngủ kiêm phòng sách còn phòng thờ ở tầng tum.
Màu sắc chủ đạo là màu sáng kết hợp với tông nâu trầm của đồ gỗ nội thất mang lại cảm giác ấm áp. Điểm xuyết là những mảng xanh cốm - sắc màu ưa thích của chủ nhà.
Phòng ngủ kiêm thư phòng nhìn ra khoảng xanh ở ban công. Không gian được thiết kế tận dụng tối đa diện tích với những giải pháp hiệu quả như cửa lùa, vách nhẹ.
Cây được bố trí ngoài ban công có diện tích khiêm tốn nhưng vẫn tạo mảng xanh mát mắt. Tường được ốp gạch gốm mộc mạc phù hợp với phong cách sân vườn.
Phòng thờ được đặt trên tầng tum ngăn cách với khu vực cầu thang bằng bức bình phong gỗ đậm chất Á Đông. Cây xanh được bố trí trong phòng hợp lý làm không gian thêm sinh động
Cầu thang sử dụng vật liệu gỗ - kính đem lại cảm giác hiện đại, khỏe khoắn. Dọc lối lưu thông trang trí những bức ảnh ưa thích của chủ nhân.
Bồn rửa tay được tách biệt với WC để sảnh tầng có thêm không gian và tận dụng ánh sáng, thông gió qua ô cửa sổ sau nhà.



Không có nhận xét nào:
Đăng nhận xét