KTS Phạm Thanh Truyền tư vấn dựa trên hình ảnh 3D như sau: Chủ nhà có thể sử dụng lam để đảm bảo thông thoáng cho mặt tiền. Đó cũng là giàn để các cây dây leo mọc bám làm đẹp và mát cho nhà.

Phía sau mảnh đất có ao tù, bạn nên làm nhà lệch tầng để nâng cao khu bếp và phòng ăn. Như vậy, khu vực ẩm thấp sẽ được cách ly.
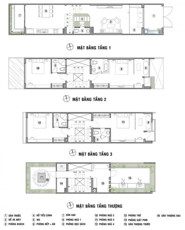
Tôi có một mảnh đất 80 m2, muốn xây dựng nhà 4 tầng trên diện tích 64 m2 (4x16m), chừa sân trước, sân sau. Tôi cần 4 phòng ngủ, các phòng ngủ đều có phòng vệ sinh riêng, không cần bố trí chỗ đỗ xe hơi. Tôi muốn có chỗ để trồng rau sạch phục vụ cho gia đình. (Loan).
Chủ nhà không cần chỗ để xe ôtô nên phần sân trước vừa phải, đặt tiểu cảnh, thác nước làm sinh động cho nhà.
Giữa khu để xe máy và phòng khách nên làm bậc tam cấp, giúp hai không gian bên trong và bên ngoài có sự tách biệt.
Bếp ăn ở sau nhà với hệ tủ lớn đủ cho gia đình đông người. Bàn ăn được xếp gọn một phía để các thành viên trong nhà dễ dàng lưu thông ra phía sân sau.
Phòng bếp nhận được ánh sáng từ cả giếng trời và sân sau nên không lo bị tối và bí.
Khu giữa nhà nên có khoảng thông tầng tương đối lớn để bảo đảm đối lưu tốt hơn với ngôi nhà 4 tầng.
Sân sau trồng một vài cây tiểu cảnh như tre trúc, chuối cảnh và có chỗ ngồi thư giãn.
Các phòng ngủ đều nhận được hai nguồn sáng.
Tông màu của nhà giản dị, chủ yếu là trắng, nâu, đem lại sự bình yên, nhẹ nhàng.
Trên sân thượng bố trí phòng thờ phía trước, khu giặt phơi phía sau và nhiều khoảng sân để ngồi thư giãn, trồng cây cảnh, rau.
Không có nhận xét nào:
Đăng nhận xét